BLIZNIAKI | Semi-detached house, 2023
Total area: 213 m² per unit
Location: Warsaw, Poland
Architects: Pavel Leshkovich, Valentine Stasiukiewicz
Location: Warsaw, Poland
Architects: Pavel Leshkovich, Valentine Stasiukiewicz
Design Approach
The house was designed with a strong focus on spatial efficiency and everyday usability.
A compact building volume, shared structural wall, and clear internal zoning were used to minimize non-productive space and reduce circulation losses.
A compact building volume, shared structural wall, and clear internal zoning were used to minimize non-productive space and reduce circulation losses.
The layout concentrates technical and service functions into a single core, allowing the main living areas to remain open, flexible, and efficiently proportioned.
This approach results in a rational, repeatable housing model with optimized construction and long-term operational performance.
This approach results in a rational, repeatable housing model with optimized construction and long-term operational performance.
Key Spatial Metrics:
Usable spaces: 78%
Service spaces: 22%
Circulation footprint: minimized and compact
Building geometry:
near-cubic, cost- and energy-efficient
Net-to-gross efficiency: above average for semi-detached housing
near-cubic, cost- and energy-efficient
Net-to-gross efficiency: above average for semi-detached housing
Through spatial optimization, the client pays only for efficiently usable space, increasing the value of every square meter.
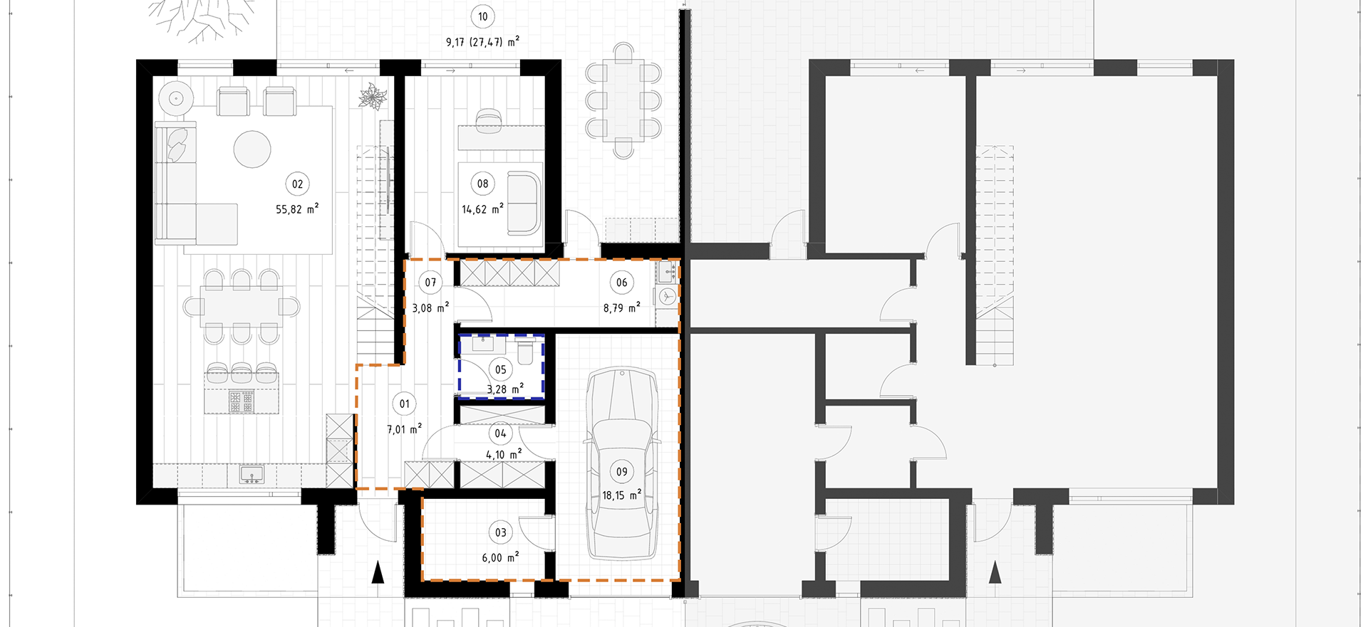
FLOOR PLAN +0.000:
LEGEND — FLOOR PLAN +0.000
01 — Entrance hall 7.01 m²
02 — Living room with kitchen and dining area 55.82 m²
03 — Boiler room 6.00 m²
04 — Walk-in wardrobe 4.10 m²
05 — Bathroom 3.28 m²
06 — Utility / laundry room 8.79 m²
07 — Circulation / corridor 3.08 m²
08 — Guest / multipurpose room 14.62 m²
09 — Garage 18.15 m²
01 — Entrance hall 7.01 m²
02 — Living room with kitchen and dining area 55.82 m²
03 — Boiler room 6.00 m²
04 — Walk-in wardrobe 4.10 m²
05 — Bathroom 3.28 m²
06 — Utility / laundry room 8.79 m²
07 — Circulation / corridor 3.08 m²
08 — Guest / multipurpose room 14.62 m²
09 — Garage 18.15 m²
SECOND FLOOR PLAN +3.300:
LEGEND — FLOOR PLAN +3.300
11 — Circulation / corridor 9.09 m²
12 — Master bedroom 16.05 m²
13 — Master walk-in wardrobe 6.80 m²
14 — Master bathroom 6.11 m²
15 — Balcony 4.72 m²
16 — Bedroom 1 15.73 m²
17 — Walk-in wardrobe 1 2.37 m²
18 — Bedroom 2 15.73 m²
19 — Walk-in wardrobe 2 2.31 m²
20 — Bathroom 10.28 m²
11 — Circulation / corridor 9.09 m²
12 — Master bedroom 16.05 m²
13 — Master walk-in wardrobe 6.80 m²
14 — Master bathroom 6.11 m²
15 — Balcony 4.72 m²
16 — Bedroom 1 15.73 m²
17 — Walk-in wardrobe 1 2.37 m²
18 — Bedroom 2 15.73 m²
19 — Walk-in wardrobe 2 2.31 m²
20 — Bathroom 10.28 m²
Project phasing and strategy
The initial phase of the project includes four residential units distributed across two plots.
From the outset, the masterplan was conceived with scalability in mind, allowing for future expansion while maintaining spatial clarity and urban coherence.
The initial phase of the project includes four residential units distributed across two plots.
From the outset, the masterplan was conceived with scalability in mind, allowing for future expansion while maintaining spatial clarity and urban coherence.
To avoid visual monotony as the development grows, several material and color schemes were designed in parallel.
These variations preserve a consistent architectural language while introducing subtle differences in texture, tone, and facade articulation — ensuring diversity within a unified framework.
These variations preserve a consistent architectural language while introducing subtle differences in texture, tone, and facade articulation — ensuring diversity within a unified framework.
Additional materials:
A compact single-car garage strategy supported by an additional on-site parking space, maximizing usable area and responding to everyday mobility patterns.
A compact single-car garage strategy supported by an additional on-site parking space, maximizing usable area and responding to everyday mobility patterns.
Covered courtyard / outdoor dining area
Designed as a transitional space between the interior and the garden, providing shade, privacy, and controlled natural light.
Designed as a transitional space between the interior and the garden, providing shade, privacy, and controlled natural light.
Winter atmosphere — seasonal view of the project.